
No.606923 尼崎市大島1丁目
- 販売価格: 3,680万円
- 最新更新日:2025年10月17日
- こちらの物件は
「アップルコーポレイション アパマンショップ不動産販売JR尼崎店」
にて取り扱っております。
- TEL:06-6495-3577
物件写真
物件概要
- ■交通 東海道本線 甲子園口駅 徒歩20分
- ■交通 東海道本線 甲子園口駅 徒歩20分
- ■専有面積 120.83m2
- ■階数/階数 階/3階
- ■土地権利 所有権
- ■駐車場 あり
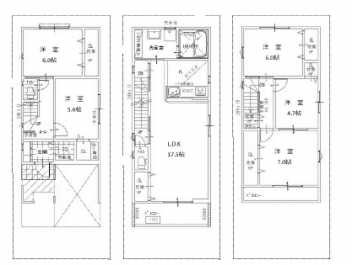
- ■間取 5LDK
- ■総戸数
- ■築年月
- ■管理費
- ■修繕積立
- ■建物構造 木造
- ■現況 完成済
- ■設備 駐車スペース有/カウンターキッチン/フローリング/バリアフリー/システムキッチン/ガスコンロ/シャンプードレッサー/室内洗濯機置場/洗浄便座/TVモニターホン/浴室乾燥機/食洗器
- 【注意事項】
- 武庫川河川敷近くの住宅街にございます。南向き、大家族も嬉しい5LDK♪もちろん充実の仕様設備ですよ♪
- ※ 図面と現況が異なる場合は、現況優先と致します。
- ※ 掲載物件は成約済み・売却中止となる場合がございます。
- ※ 成約の際は仲介手数料とこれにかかる消費税が必要です。
