
No.602419 尼崎市東園田町6丁目
- 販売価格: 4,680万円
- 最新更新日:2025年12月18日
- こちらの物件は
「アップルコーポレイション アパマンショップ不動産販売JR尼崎店」
にて取り扱っております。
- TEL:06-6495-3577
物件写真
物件概要
- ■交通 阪急神戸線 園田駅 徒歩10分
- ■交通 阪急神戸線 園田駅 徒歩10分
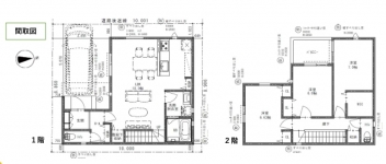
- ■専有面積 94.81m2
- ■階数/階数 階/2階
- ■土地権利 所有権
- ■駐車場 あり
- ■間取 3LDK+WIC
- ■総戸数
- ■築年月
- ■管理費
- ■修繕積立
- ■建物構造 木造
- ■現況 空家
- ■設備 駐車スペース有/フローリング/ウォークインクローゼット/バリアフリー/カウンターキッチン/システムキッチン/ガスコンロ/TVモニターホン/シャンプードレッサー/室内洗濯機置場/洗浄便座
- 【注意事項】
- 阪急園田駅徒歩10分の住宅街にございます。間口が広く陽当り良好♪完成済みですので、お気軽にご見学頂けますよ♪
- ※ 図面と現況が異なる場合は、現況優先と致します。
- ※ 掲載物件は成約済み・売却中止となる場合がございます。
- ※ 成約の際は仲介手数料とこれにかかる消費税が必要です。
